Blokunit was de naam voor een kleine schakelbare geprefabriceerde woning. De basismaat was 8 bij 4 meter. Door het zelfdragende karakter kon een groot deel van de muren verwijderd worden om de losse woningen te koppelen tot grotere eenheden.
|  | 
|  | 
Aaneengeschakeld werden de blokunits vaak toegepast als permanent of semi-permanent verblijf voor een school, kinderopvang e.d. 
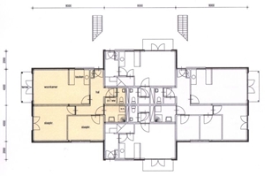
In bijvoorbeeld een groep van zeven stuks per woonlaag waren blokunits zeer geschikt voor jongeren en andere starters op de woningmarkt. Per woonlaag kon één van de units gebruikt worden om per woning het eigen sanitair te bergen. In het middengedeelte kon een verhoogd dak voor extra licht of kamers zorgen. Door blokken samen te voegen werd meer differentiatie aangebracht in de bewoning, voor gewoon meer woonruimte, voor een invalide of voor twee jongeren. De afbeelding boven toont zo'n opstelling.
Eventuele geluidsoverlast was tot een minimum beperkt: 
- De gemeenschappelijke raakvlakken van de woningen waren gering.
- De slaapkamers grensden niet aan de woonkamers.
- De vloer was van beton en het dak van houtmateriaal, waardoor meer woonlagen boven elkaar gescheiden werden door het houten dak, een soort spouw voor leidingen e.d. en de betonvloer van de woning erboven.
Blokunits en andere schakelbare geprefabriceerde woningen waren en zijn betrekkelijk goedkoop. Als "Den Haag" nu de grond niet zo duur maakte voor dit type woningen dan dragen deze woningen ook bij aan het verlagen van huursubsidie: de woningen kunnen immers ook tot eengezinshuizen met meer woonlagen geschakeld worden. 
|  |  | 
|  | |
|  | |