Een
vierseizoenenpui is de treffende benaming voor een pui die volledig bestaat uit deuren en daarmee voor
elk seizoen een juiste opening kan bieden.
Harmonicapui
"Architecten ontwerpen graag moderne ruimtes met veel
licht. Hiervoor is een harmonicapui (vouwwand) uitermate geschikt. De wand kan zowel naar links als naar rechts worden opgeschoven
of gevouwen en bij grotere wanden kan dit gelijktijdig naar beide zijden. Met een harmonicapui kan letterlijk de hele wand worden weggeschoven om
volledig van
terras, balkon of tuin te genieten. Maar ook wanneer de pui gesloten is, haalt men door de grote
glasoppervlakken het buitengevoel naar binnen."
Vaste deurenstijlen
Een vierseizoenenpui behoeft geen harmonicapui te zijn: wanneer de gehele pui
bestaat uit deuren die aan vaste stijlen zijn bevestigd, kunnen alle deuren open
en ontstaat toch het ruimtelijke gevoel (onderste foto). Het voordeel van een
dergelijke pui is dat er niet zoveel "geschoven" hoeft te worden met
de deurenpartij, zeker als na een aantal jaren dat schuiven wat moeilijker gaat.
Een nadeel van de pui met "vaste deuren" is dat de deuren een aardig
deel van het terras beslaan wanneer ze alle geopend zijn; een wat groter terras
is in dit geval aan te bevelen.
klik op de afbeeldingen voor groter vierseizoenenpui, eerste afbeelding geheel gesloten, tweede geheel geopend (hmb profit locks & tools): ![]() |
![]() |
de vele mogelijkheden van de vierseizoenenpui (hmb profit locks & tools): ![]() |
vierseizoenenpui (h. van den boogaard ijzerwaren - bouwbeslag - gereedschappen): ![]() |
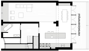
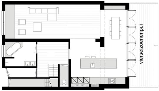
"vierseizoenenpui" met deuren aan vaste stijlen (project aanbouw, zie ook bij lichtstraat; bnla architecten): ![]() |
![]() |
Aangehaalde tekst van bnla
architecten.