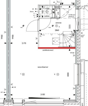
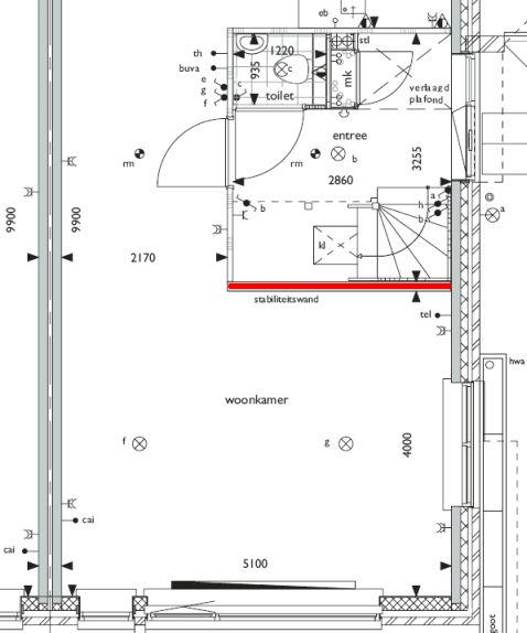
Een stabiliteitswand is een wand die de benodigde stabiliteit (stijfheid) van een constructie in bv. skeletbouw waarborgt. 

Stabiliteitswanden: 
- zorgen ervoor dat de "doos" die een gebouw is, niet naar één zijde neigt (wanden zijn in hun lengte- en hoogterichting redelijk buigslap)
- zorgen ervoor dat bv. de vloeren door deze wand aan elkaar worden verbonden om één geheel te vormen (schijfwerking: de dragende dwarswand verbindt de verdiepingvloeren met elkaar en leidt op deze manier de krachten af naar de onderliggende constructie of de fundering). 

Stabiliteitswanden hebben een vergelijkbare functie als de betonnen kernen van hoge gebouwen (stijve kernen als liftenhuis, trappenhuis) en windverbanden.
Ook bij uitkragende verdiepingen kan een doorlopende dikke stabiliteitswand als decentrale kern zorgen voor de noodzakelijke stijfheid om de krachten en momenten van de uitkraging op te vangen.


stabiliteitswand;
klik voor groter:


Eng. stability wall