appartementenvloer, leidingplaatvloer, integraalvloer

Een appartementenvloer is een prefab, vrijdragende systeemvloer met vooraf aangebrachte ruimte voor leidingen waardoor de bouw van appartementen vergemakkelijkt wordt en versnelt. "Met een verend opgelegde dekvloer kan uitstekend worden voldaan aan verschillende eisen voor geluidwering in woongebouwen." 
Met "leidingen" worden niet alleen leidingen bedoeld voor water, elektriciteit, internet e.d. bedoeld, maar ook leidingen voor riolering of ventilatie.

De meeste appartementenvloeren hebben:
- een breedte van 1,2 m of 3 m of 3,5 m 
- een plaatdikte van 280 mm of 320 mm excl. afwerkvloer
- sleuven van 120 mm of 135 mm (bij 320 mm plaatdikte)
- een overspanning van max. 7 tot 9 m of 11,8 m (mede afhankelijk van type plaat en constructieve dikte van de plaat).

Varianten van de appartementenvloer (let op: dit zijn niet allemaal "appartementenvloeren", maar ook varianten daarop; naam en invulling van type vloer is mede afhankelijk van de fabrikant / leverancier!):
- appartementenvloer of integraalvloer (massief of kanaalplaat; leidingen, sparingen; meestal voorgespannen; sparingen voor trapgat e.d.)
- leidingplaatvloer (kanaalplaat; speciaal voor leidingen)
- cascovloer (massief; traditionele wapening; leidingen; eventueel minder constructieve hoogte aan te vullen met schuimbeton; de onderkant kan strak en glad zijn)
- kanaalplaatvloer (kanaalplaat; leidingen beperkt mogelijk, sparingen; algemene toepassingen).

De appartementenvloer wordt meestal toegepast als verdiepingvloer en als dakvloer, maar o.m. de geïsoleerde leidingplaatvloer van Dycore kan ook toegepast worden als beganegrondvloer bij bijvoorbeeld kruipruimteloze woningbouw (isolatie door voorgevormde en brandvertragende EPS platen).

Het DoorStapelSysteeem DDS van VBI kent een grote overspanning tot 11 m en "maakt het mogelijk om prefab te bouwen en daarbij wand- en vloersystemen op elkaar aan te sluiten zonder randbekisting en randbalk" (tot en met 4 bouwlagen). De overspanning is tot 9 m bij 280 mm plaatdikte excl. afwerklaag en tot 11,8 m bij plaatdikte 320 mm excl. afwerklaag, wat een grote vrij indeelbare ruimte geeft en daardoor meer flexibiliteit bij de gebruiker en hergebruiker.

Voor niet-woningscheidende verdiepingsvloeren (dus geen appartementenvloer) is er ook de MPV-vloer (massief; leidingen, sparingen; voorgespannen; plaatbreedte 3,5 m; niet voor appartementen).

Gezien de grote verscheidenheid aan mogelijkheden, neem contact op met bijvoorbeeld Heembeton, VBI, Bestcon, Dycore.

Naar Documentatie.


een paar voorbeelden van bepaalde types "appartementenvloeren":

voorbeeld integraalvloer met sparing trapgat;
klik voor groter (vbi):


voorbeeld leidingplaatvloer
; klik voor groter (heembeton):


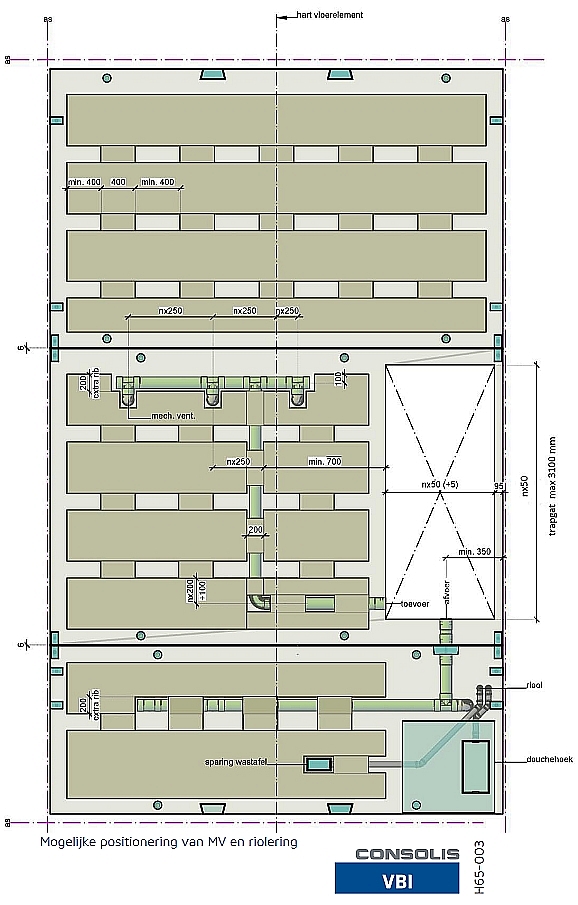
voorbeeld integraalvloer met mechanische ventilatie en riolering
; klik voor groter (vbi):


voorbeeld bevestigen balkon via isokorf aan een cascovloer
; klik voor groter (heembeton):


voorbeeld leidingplaatvloer (vbi):


Documentatie

- Appartementenvloer dikte 320 mm, overspanning tot 11,8 m (van VBI)

- Brochure Integraalvloer Prefab Next Level (van VBI)